BY: JESSICA SIDMAN
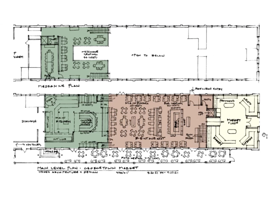
Cafe Milano and Fiola Mare will soon have some big competition as Georgetown Italian hotspots. Stephen Starr, the Philadelphia restaurateur behind Le Diplomate and St. Anselm, is planning to open his own Italian restaurant and market in the former Dean & DeLuca space on M Street, Northwest.
“You need to all be sworn to secrecy because I’m going to tell you a few things about what we’re going to do here that we really don’t want to be released to the press,” said Starr in a virtual Advisory Neighborhood Commission meeting yesterday. He was then reminded that the call was being publicly recorded. “OK, so Donald Trump and I are doing a restaurant,” he joked.
SOURCE: https://www.washingtonian.com
By Kimberly Sutton Love is what brought Tony Nicoletta to Texas from New York.The transpl...
Little Italy San Jose will be hosting a single elimination Cannoli tournament to coincide...
The Wine Consortium of Romagna, together with Consulate General of Italy in Boston, the Ho...
Hey, come over here, kid, learn something. ... You see, you start out with a little bit of...
There's something to be said for having your food prepared tableside. Guacamole tastes fre...
Fiorenzo Dogliani, owner of Beni di Batasiolo, will join Carmelo Mauro for an exclusive wi...
The popular D'Amico's Italian Market Café, a 16-year-old mainstay of Rice Village, is head...
Sunday December 14, 5.30 pmSole Mio - 8657 S Highland Dr, Sandy (Utah) 84093 The Italian...